计算器
计算器
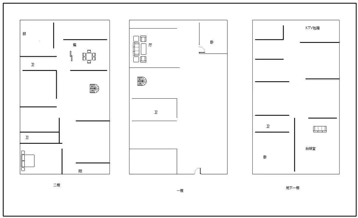
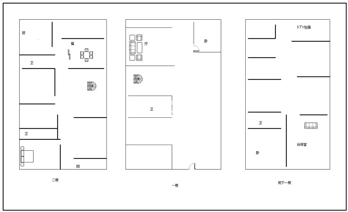
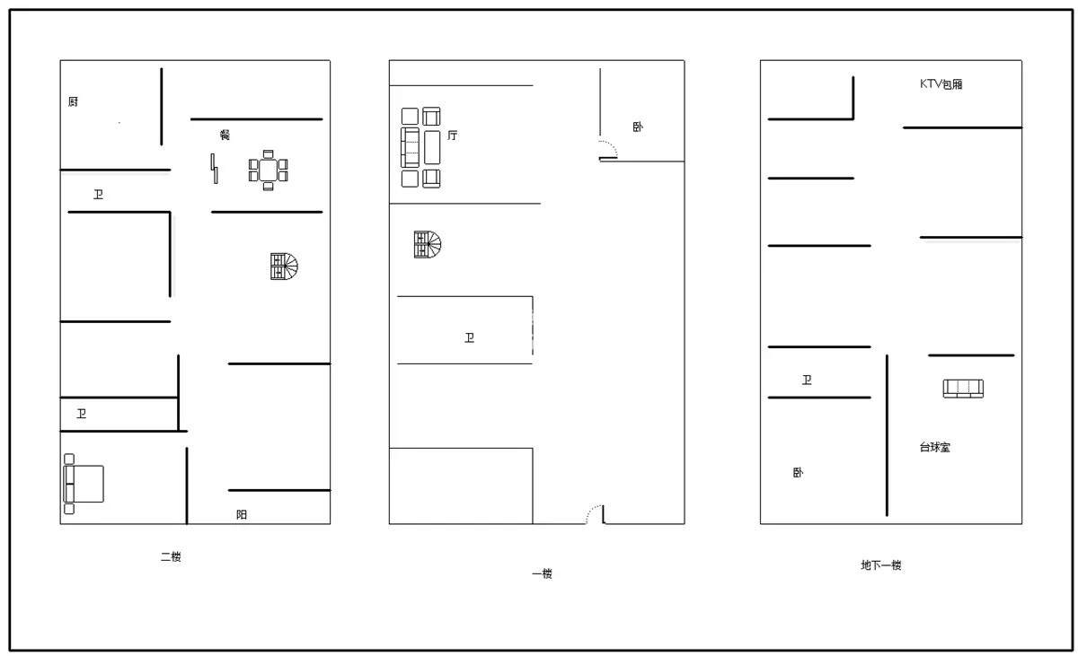
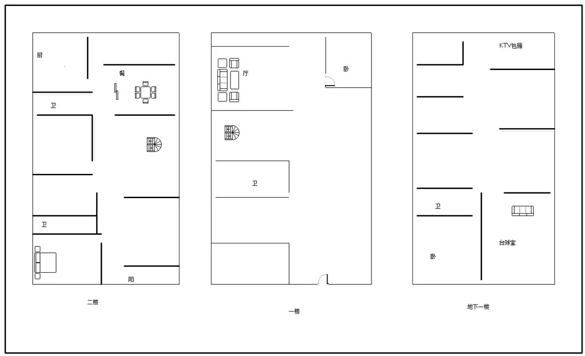
- 户型5室2厅4卫
- 楼层(共3层) 高层
- 面积约315平米
- 装修 已装修
- 朝向南北
- 建筑年代 2009年
收藏该房源
分享该房源


















































计算器
客厅
客厅
客厅
客厅
客厅
客厅
客厅
客厅
客厅
客厅
客厅
客厅
客厅
客厅
客厅
客厅
客厅
客厅
客厅
客厅
客厅
客厅
客厅
客厅
客厅
客厅
客厅
客厅
客厅
客厅
客厅
客厅
客厅
客厅
客厅
客厅
客厅
客厅
客厅
客厅
客厅
客厅
客厅
客厅
客厅
客厅
客厅
客厅
客厅
客厅
(凤凰水城红树湾别墅(新)) 楼盘问答

重要风险提示
本站旨在为广大用户提供更丰富的信息,但由于部分信息通过技术手段生成,部分信息由第三方提供,我们持续通过技术和管理手段提升信息的准确度,但我们无法确保信息的真实性、准确性和完整性。
1、关于参考户型图
本站呈现的户型图为平台根据已拍摄的VR内容/数据绘制而成的非标准的参考户型图,其中户型结构及房屋面积并非按国家标准进行的测绘专业活动取得,我们会持续改进技术,但因为设备、技术、摄影师人为操作偏差等原因参考户型图与真实现状一定存在差异,我们无法保障户型图准确性和差异率,户型图仅供参考,不应作为您交易的决策依据,房屋面积的准确信息请您与房源业主核实,并请以产权证明或您委托的专业机构测量结果为准。
2、关于房屋装修情况
本站房源图片、VR效果图、视频等呈现出的房屋装修情况可能因为拍摄时间、拍摄角度等原因和实际场景存在出入,仅供参考,不应作为您交易的决策依据,请以您在看房时房源的实际装修情况为准。
3、关于房屋装修情况
本站展示的房源信息、交易信息等(包括但不限于房屋面积、所在楼层、房屋朝向、房屋用途、建成年代、建筑结构、供暖方式、抵押信息、交易权属)由经纪人提供,仅供参考不应作为您交易的决策依据,房源的准确信息请您与房源业主核实,并以房本信息、房屋实际情况、您签订房屋买卖合同中被露的信息为准。
4、关于房屋周边配套等
房源介绍中的周边配套、在建设施、规划设施、地铁信息、绿化率、得房率等内容均系第三方提供,仅供参考不应作为您交易的决策依据,房屋周边配套请您与房源业主及主管部门核实,并以房本信息、房屋实际情况、您签订房屋买卖合同中披露的信息为准。
5、关于距离
房源介绍中与距离相关的数据均来源于百度地图。
免责声明:本站旨在为广大用户提供更多信息服务,不声明或保证所提供信息的准确性和完整性。 页面所载内容及数据仅供用户参考和借鉴,最终以开发商或者经纪人实际公示数据为准, 用户因参照本站信息进行相关交易所造成的任何后果与本站无关。如在本站看到有虚假信息或者信息错误, 您可以点击相应的举报按钮或者拨打举报电话:4006622117
备注:本站所有涉及面积或者带有单位“㎡”的信息都是“建筑面积”,所有的售价和均价、月租金等,都是参考价格。
湖南省长沙市芙蓉区世茂环球金融中心20、21、29楼
全国服务监督热线:4006622117
快捷登录


















































以上户型图为象盒找房提供的房源参考图,其中户型结构及面积并非按国家专业测绘活动所得,与真实现状及产权证明呈现的面积存在差异,仅供参考,请以产权证明或专业机构测量结果为准。
微聊
微聊